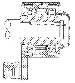
NF型非接觸式逆止器它是安裝在高速軸上的防逆轉裝置,其巧妙地利用特殊形狀楔塊的離心力及其與內、外環之間的特殊幾何關系以實現其正向運行時,主要構件非接觸無磨損運轉,反向又能可靠逆止的新型逆止裝置。該逆止器廣泛用于運輸機械、提升機、刮板輸送機及其它有逆止要求的機械設備中。該產品具有逆止功效大,可靠性高。使用壽命長、重量輕、安裝維護方便等優點,其綜合性能明顯優于其它逆止器。 我公司生產的NF型逆止器,其技術性能完全符合JB/T9015-1999的規定,同時, 為了便于用戶的安裝,我廠還供應帶防轉座的非接觸式逆止器,型號為NFG。
工作原理:
在逆止器內部,有多個異形塊分布在由內、外圈所形成的滾道中,當內圈正向運轉時,帶動異形塊一起旋轉,當轉速在一定范圍內時,異形塊在離心力的作用下發生偏轉,與內、外圈脫離接觸,從而實現無磨損運轉。當內圈反向運轉時,在彈簧的作用下使異形塊與內、外圈接觸,并將其楔緊成一體,從而承受由內圈轉送來的反向力矩。(見產品選用中的基本形式:非接觸式單向離合器。)
選用原則:
1.NF系列Te≥Tc。
2.逆止器安裝軸伸的轉速應小于或等于該逆止器最高轉速。
3.根據逆止器安裝軸伸選定逆止器安裝孔徑。
4.面對逆止器安裝軸伸端頭,確定逆止器的旋向代號,順時針選“S”,反之選“N”
5.最大質量為同一規格中孔徑最小時的質量。
6.有特殊要求請與我公司聯系,我公司可按貴司要求,設計、制作非標產品。
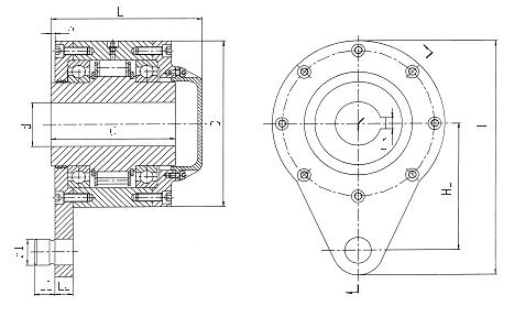
|
型號
TYPE |
額定
扭矩 (N.m) |
最低
轉速 [r/min] |
最低
轉速 [r/min] |
外形尺寸[mm]
|
重量
[kg] |
|||||||||
|
dmax
[H7] |
dmin
[H7] |
D1
|
D
|
H
|
H1
|
B
|
L1
|
L2
|
L3
|
|||||
|
NF10
|
1000
|
450
|
1500
|
50
|
40
|
28
|
190
|
273
|
150
|
135
|
25
|
20
|
5
|
27
|
|
NF16
|
1600
|
60
|
45
|
32
|
208
|
295
|
160
|
140
|
22
|
31
|
||||
|
NF25
|
2500
|
425
|
70
|
50
|
38
|
230
|
323
|
170
|
145
|
25
|
38
|
|||
|
NF40
|
4000
|
80
|
60
|
42
|
245
|
350
|
185
|
156
|
28
|
30
|
49
|
|||
|
NF63
|
6300
|
400
|
90
|
70
|
45
|
260
|
370
|
195
|
170
|
30
|
35
|
62
|
||
|
NF80
|
8000
|
100
|
80
|
48
|
275
|
396
|
210
|
175
|
35
|
35
|
73
|
|||
|
NF100
|
10000
|
375
|
110
|
90
|
52
|
295
|
425
|
225
|
210
|
45
|
98
|
|||
|
NF125
|
12500
|
130
|
100
|
58
|
330
|
473
|
250
|
234
|
40
|
50
|
8
|
154
|
||
|
NF160
|
16000
|
1000
|
140
|
110
|
62
|
360
|
512
|
270
|
244
|
55
|
175
|
|||
|
NF200
|
20000
|
350
|
150
|
120
|
65
|
400
|
565
|
300
|
244
|
50
|
58
|
214
|
||
|
NF250
|
25000
|
160
|
130
|
70
|
430
|
620
|
335
|
254
|
63
|
256
|
||||
|
產品鍵槽尺寸以國標GB/T1095-79為準
|
||||||||||||||
| d | 40~45 | >40~50 | >50~58 | >58~65 | >65~75 | >75~85 | >85~95 | >95~110 | >110~130 | >130~150 | >150~160 |
| b×t | 12×3.3 | 14×3.8 | 16×4.3 | 18×4.4 | 20×4.9 | 22×5.4 | 25×5.4 | 28×6.4 | 32×7.4 | 36×8.4 | 40×9.4 |







